Nastavení cookies

"Cookies" jsou malé softwarové soubory, které nám umožňují ukládat informace ohledně vašeho zařízení a vás jako uživatele výhradně v době, kdy navštívíte některou z našich internetových stránek.

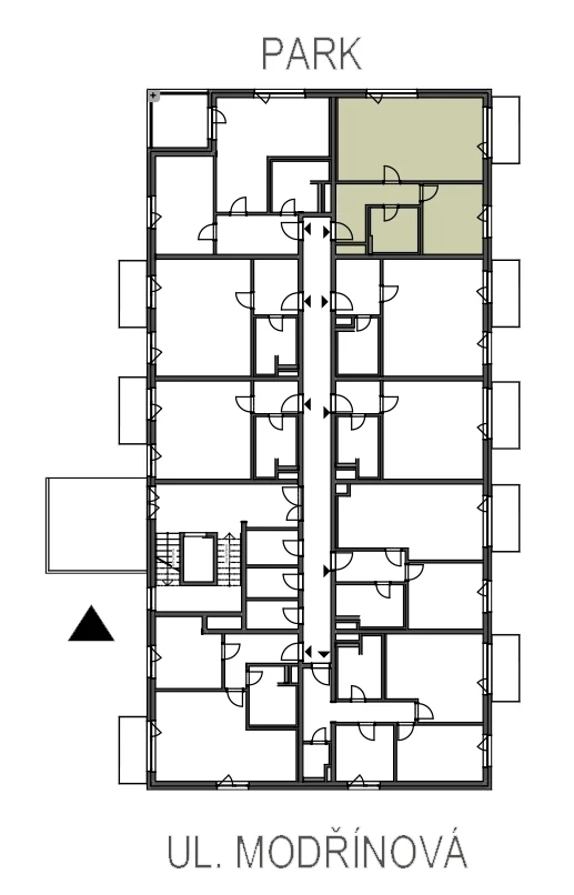
Byt A 4.4

61.06 m2

Celková plocha

2+kk

Dispozice

4.NP

Podlaží

A

Budova

  1. Chodba 8.26 m2
  2. Ložnice 12.17 m2
  3. Obývací pokoj + kuchyň 34.60 m2
  4. Koupelna 6.03 m2
  5. Sklepní kóje 2.40 m2
  6. Balkon 5.40 m2

6 641 136 Kč

Cena je včetně DPH bez garážového parkovacího stání

Chcete více informací?

Kontaktujte nás telefonicky +420 603 980 406
emailem info@modrinova.cz
nebo vyplňte formulář a my se vám ozveme.