Nastavení cookies

"Cookies" jsou malé softwarové soubory, které nám umožňují ukládat informace ohledně vašeho zařízení a vás jako uživatele výhradně v době, kdy navštívíte některou z našich internetových stránek.

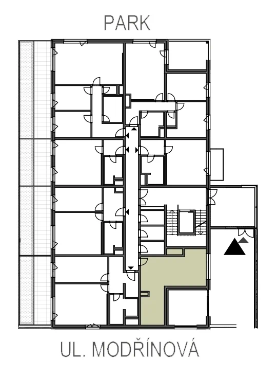
Komerční prostory

42.73 m2

Celková plocha

2+kk

Dispozice

1.NP

Podlaží

B

Budova

---

Cena je včetně DPH bez garážového parkovacího stání

Chcete více informací?

Kontaktujte nás telefonicky +420 603 980 406
emailem info@modrinova.cz
nebo vyplňte formulář a my se vám ozveme.